Espace propriétaire
fr

Votre recherche

Exclusivité
Saint-Pierre (97410)

2 pièces - 47 m²

APPARTEMENT 2 PIÈCES MEUBLÉ

800 € CC*
Ref : LJLAP40002277
A propos de ce bien

EXCLUSIVITÉ - SAINT-PIERRE - Ravine blanche

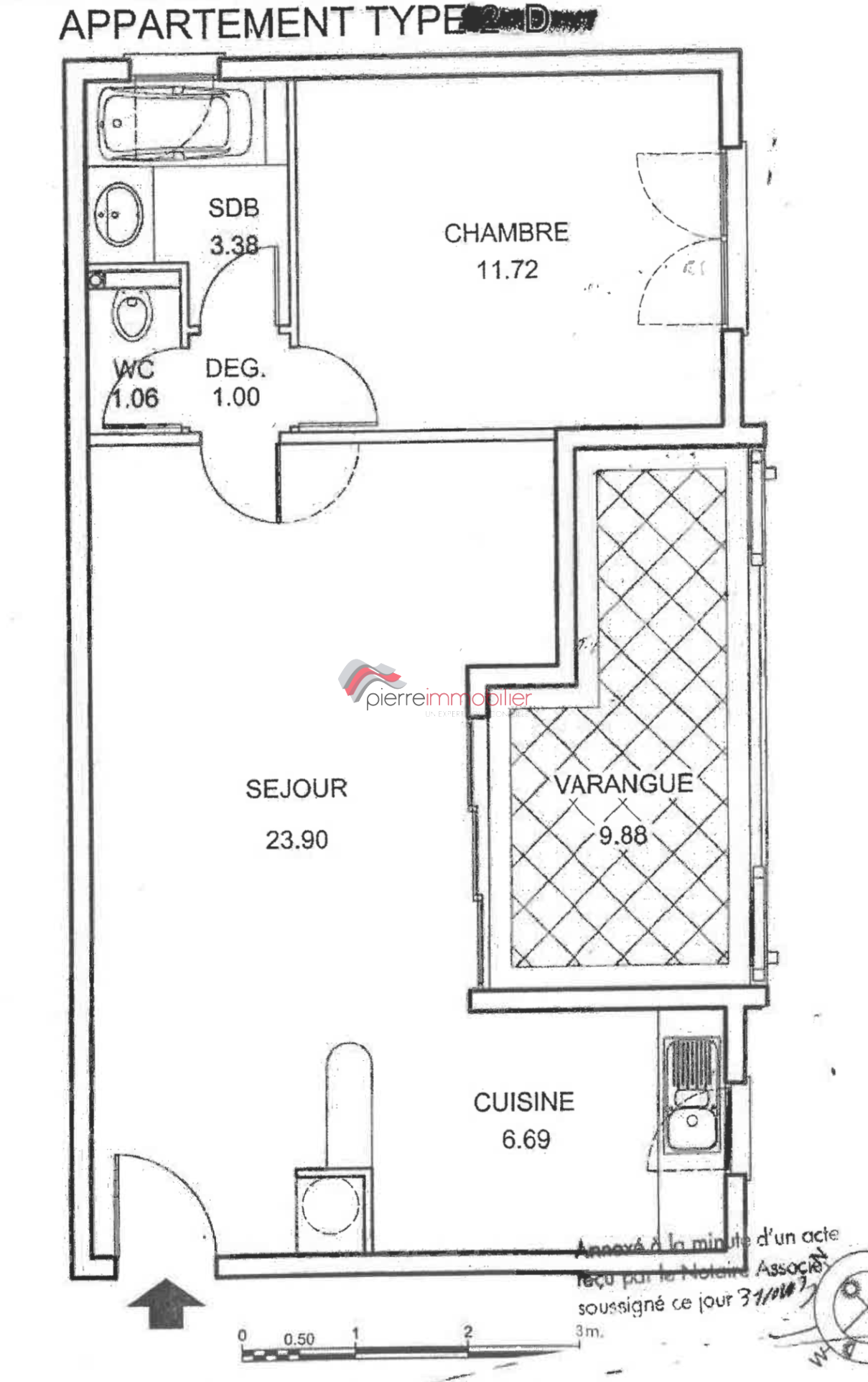
En location, venez découvrir cet apparement 2 pièces ENTIÈRMEENT MEUBLÉ de 57 m2 plancher (47 m2 habitbales) situé au 2ème étage d'une résidence avec ascenseur.

L'appartement dispose d'une cuisine équipée ouverte sur un séjour climatisé de 24 m2, une chambre climatisée, un salle d'eau et wc séparé.

Pour profiter de l'extérieur l'appartement offre une varangue de 10 m2

L'apparement est mis en location avec une place de parking aérienne.

Le loyer est de 800 euros par mois Charge de copropriété inclus dont 25 euros de provisions pour charges (soumis à la régularisation annuellement)

Le dépôt de garantie est de 1550 euros soit 2 termes de loyers

L'appartement est disponible le 03 Mars 2026.

Les honoraires charges locataire sont de 611 euros (soit 13 euros par m2 habitables) dont 141 euros pour l'état des lieux (soit 3 euros par m2 habitables).

Votre agence PIERRE IMMOBILIER vous invite à découvrir cette offre et déposer votre candidature sur notre site : https://etudepierreimmo.candidature-location.com

Les informations sur les risques auxquels ce bien est exposé sont disponibles sur le site Géorisques : https://www.georisques.gouv.fr. *Service facultatif. Contribution annuelle "attentats" non comprise. Voir conditions en agence.

Descriptif de ce bien
Général
Code postal 97410
Nombre de chambre(s) 1
Nombre de pièces 2
Meublé OUI
Etage 2
Nombre de niveaux 1
Ascenseur OUI
Détails
Nb de salle d'eau 1
Cuisine Américaine
Type de cuisine Equipée
Terrasse OUI
Financier
Loyer CC* / mois 800 €
Honoraires TTC charge locataire 611 €
Dont état des lieux 141 €
Dépôt de garantie TTC 1 550 €
Charges locatives (provision donnant lieu à régularisation annuelle) 25 €
Energie
DPE GES
Contacter pour ce bien
L'agence
Téléphone 02 62 96 78 96
Adresse
52 Boulevard Hubert Delisle 97410 Saint-Pierre

* Champ obligatoire

Les informations recueillies sur ce formulaire sont enregistrées dans un fichier informatisé par La Boite Immo agissant comme Sous-traitant du traitement pour la gestion de la clientèle/prospects de l'Agence / du Réseau qui reste Responsable du Traitement de vos Données personnelles. La base légale du traitement repose sur l'intérêt légitime de l'Agence / du Réseau. Elles sont conservées jusqu'à demande de suppression et sont destinées à l'Agence / au Réseau. Conformément à la loi « informatique et libertés », vous disposez des droits d’accès, de rectification, d’effacement, d’opposition, de limitation et de portabilité de vos données. Vous pouvez retirer votre consentement à tout moment en contactant directement l’Agence / Le Réseau. Consultez le site https://cnil.fr/fr pour plus d’informations sur vos droits. Si vous estimez, après avoir contacté l'Agence / le Réseau, que vos droits « Informatique et Libertés » ne sont pas respectés, vous pouvez adresser une réclamation à la CNIL. Nous vous informons de l’existence de la liste d'opposition au démarchage téléphonique « Bloctel », sur laquelle vous pouvez vous inscrire ici : https://www.bloctel.gouv.fr Dans le cadre de la protection des Données personnelles, nous vous invitons à ne pas inscrire de Données sensibles dans le champ de saisie libre.
Ce site est protégé par reCAPTCHA, les Politiques de Confidentialité et les Conditions d'Utilisation de Google s'appliquent.

Découvrir nos outils